

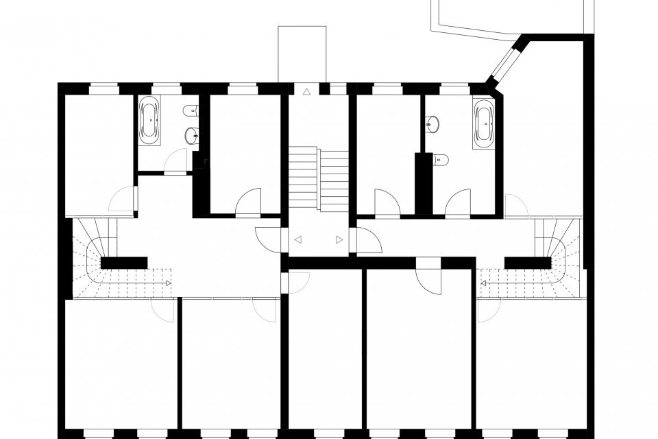
Berlin Moabit. Neubau Dachgeschoß. Der Bauherr wünschte eine Verbindung zwischen dem 4. Obergeschoß und dem neuem Dachgeschoß. Entstanden sind 2 großzzügige Maisonetten. Das Dachgeschoß wurde als Stahlkonstruktion ausgeführt. Hierdurch war die besondere Dachform umsetzbar - mit dem Ziel große offene Räume zu errichten. Das vierte Obergeschoß wurde kernsaniert und enthielt eine neue Treppe, die sich um die Tragkonstruktion des neuen Dachgeschoss wendelt und in die neuen Räume führt.



