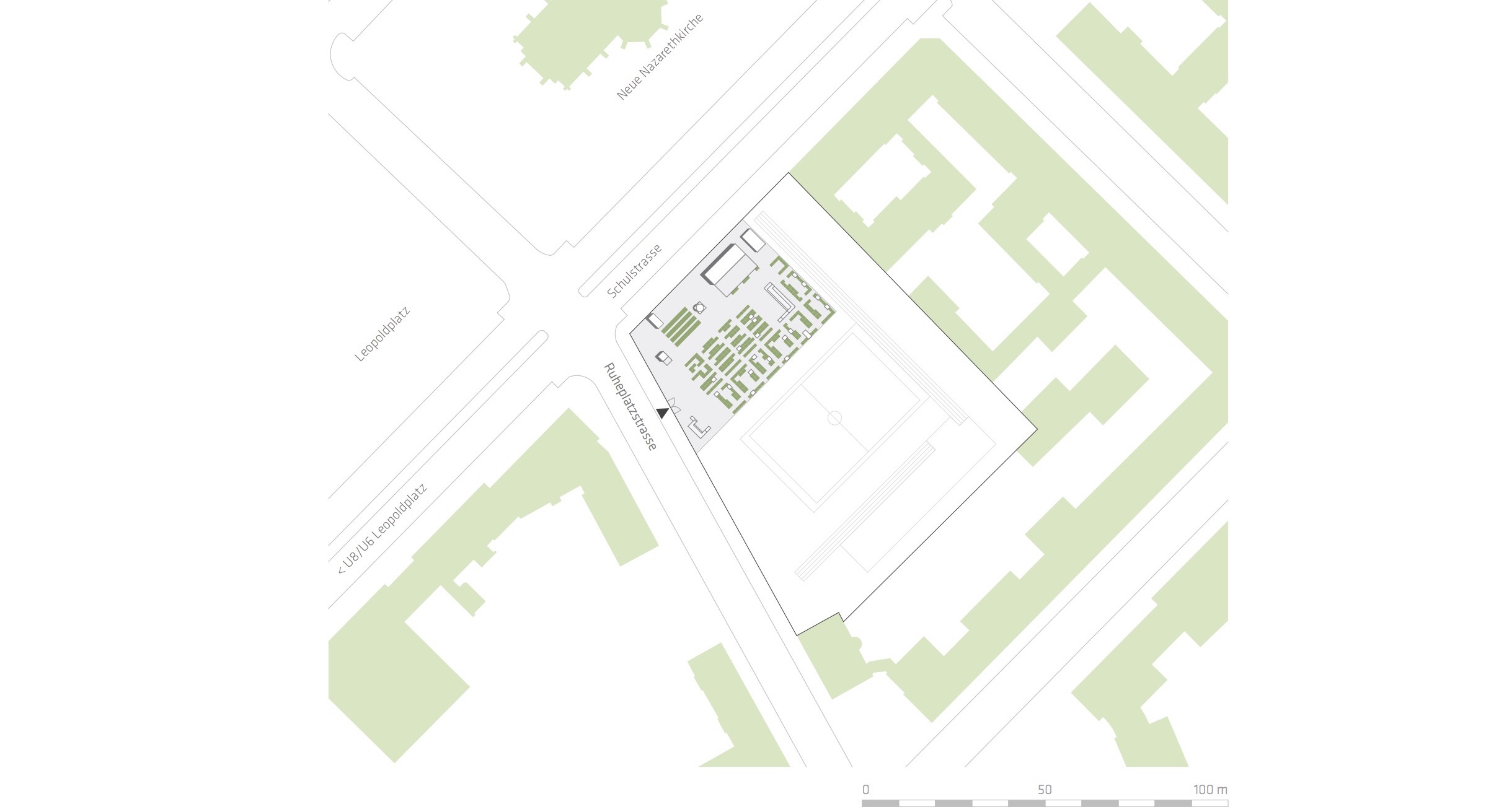
himmelbeet ist ein interkultureller Gemeinschaftsgarten in Berlin Wedding, der die Besucher zum Mitgärtnern & Selberernten einlädt. RaumstarArchitekten begleitet das urban farming Projekt seit seinem Beginn im Jahre 2012 und sorgt für die räumliche Konzeption des Gartens, die Funktionsbauten sowie die Abstimmung mit den Baubehörden bei Anträgen und Genehmigungen.
Im Fokus des urbanen Gärtnerns steht die Erzeugung von Nahrungsmitteln in der Stadt mit besonderem Schwerpunkt auf dem ökologischen Anbau regionaler und alter Kultursorten. Hier finden Menschen aller Altersstufen beim Gärtnern, Bauen mit recycelten Materialien, gemeinsamen Kochen, bei verschiedenen Workshops zu Themen wie Umweltbildung und Ernährung, im Gartencafé und bei Kulturveranstaltungen zusammen. Neben dem Gemeinschaftsgarten gibt es für Privatpersonen & Institutionen die Möglichkeit, Beete für eine Saison zu pachten (www.himmelbeet.de)






