Lageplan der dörflichen Struktur in Lübbenau
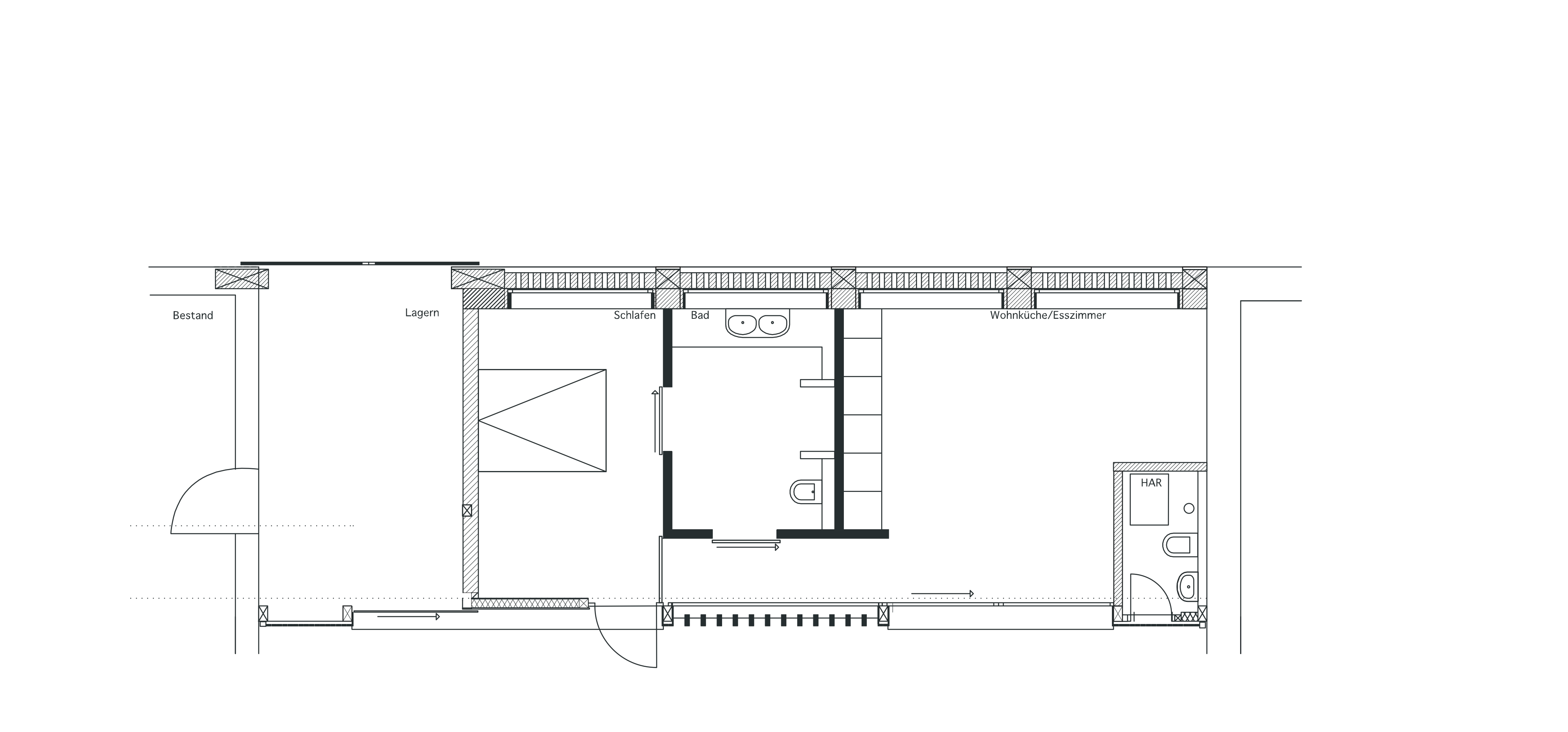
Die Mutter der Bauherrin Barbara Schramm, die bislang im 1. Obergeschoß eines Familienwohnhauses im Stadtkern von Lübbenau lebte, wünschte sich ebenerdig zu wohnen. Die im Hof auf dem Grundstück der Familie befindliche Remise, deren Klinkerwand schon gebaut war, als die alte Dame geboren wurde, bot sich als zukünftiger Lebensraum an. So entstand ein kleiner, moderner Bau der mit zwei Zimmern und ca. 80qm Nutzfläche der Bewohnerin einen neuen Lebensabschnitt am vertrauten Ort im Familienverband ermöglicht und unter Einbeziehung des historischen Bestandes auf den Wandel der Dorfstruktur von Lübbenau eingeht. Die alte Klinkerwand, die das Grundstück vom Hof zur Straße hin abgrenzt, stand Pate für den neuen Entwurf.
Die in die Wand eingelassenen Lüftungsschlitze, ehemals zum Trocknen des in der Remise untergebrachten Strohs, wurden wieder freigelegt und verglast. Mit vier Einheiten bilden die neuen Fensteröffnungen den rhytmischen Ablauf im Gebäude und stellen an jedem Punkt des Baukörpers einen Bezug zu der Vergangenheit des Ortes her.
Als prägendes Element für den Innenraum aufgegriffen, wurden die Lüftungsschlitze an der Hoffassade in eine moderne Formensprache übersetzt. Hier übernehmen sie in der Lärchenholzfassade die Markierung der inneren Erschließung. Der Weg vom Schlafraum hin zum Bad und weiter zum Wohnraum wird von tief stehenden Lamellen vor Einblicken aus dem Haupthaus geschützt. Gleichzeitig bietet sich jedoch ein freier Blick in den Garten und sorgt für eine morgendliche Lichtdusche.




